This no‑chain three‑bedroom semi‑detached house offers a practical and inviting layout, with plenty of potential for buyers looking to add their own touch.
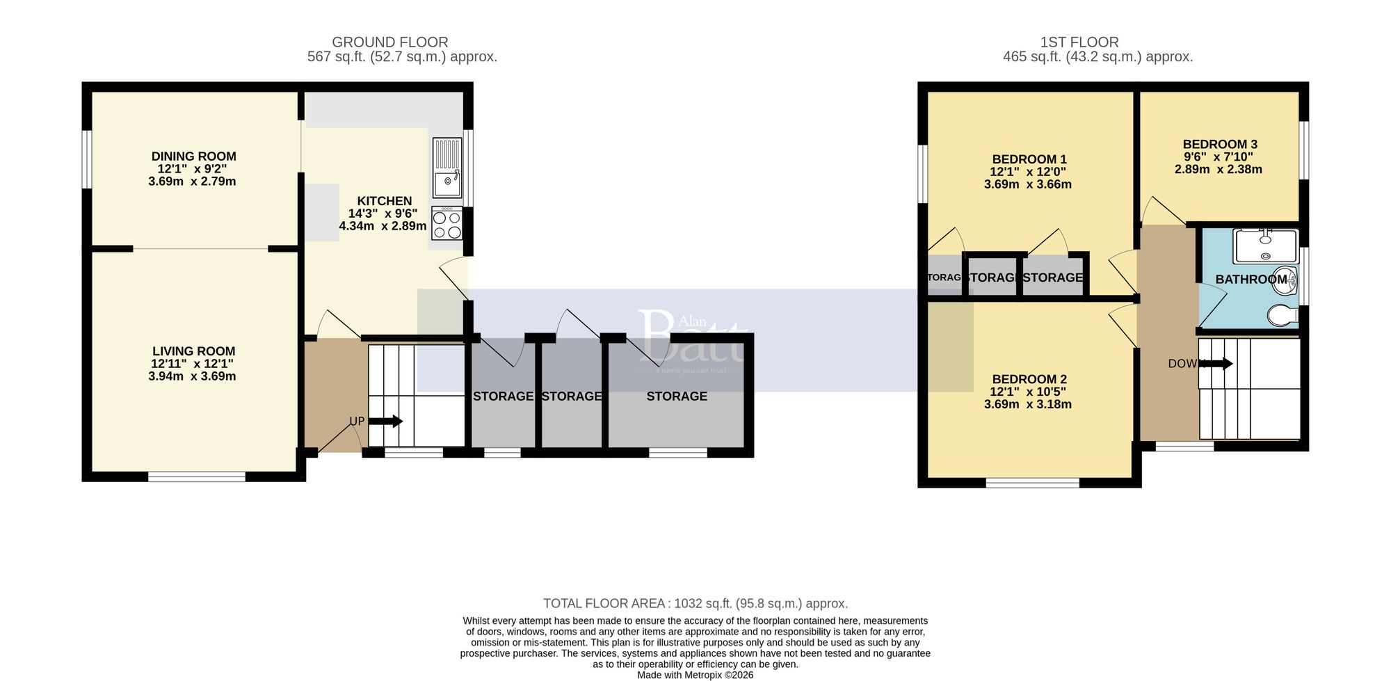
Upon entering, a small hallway welcomes you and provides access to the main ground‑floor rooms. The functional kitchen is equipped with essential fittings and generous workspace, making meal preparation both convenient and efficient.
Directly adjoining the kitchen, the dining room creates an easy flow for entertaining and every-day dining, seamlessly connecting to the bright and spacious living room. The open layout between the living and dining areas enhances the sense of space and light throughout the ground floor, creating a comfortable setting for relaxation and social gatherings.
Upstairs, the first floor comprises two well‑proportioned double bedrooms and a single bedroom, with the main bedroom benefiting from built‑in storage for added convenience. A modern shower room, complete with basin and WC, completes the first‑floor accommodation, offering a fresh and functional space for daily routines.
Compact enclosed garden featuring a paved seating area and a stepped planter, offering great scope for enhancement. The property also benefits from a gated front garden and driveway parking, providing secure and convenient off‑street space.
The property is ideally positioned close to local green spaces, providing pleasant areas for walking, relaxation and outdoor enjoyment, all within easy reach. It also benefits from convenient access to key road links, offering straightforward connections into Wigan town centre, nearby districts and wider commuter routes across the region.
Well suited to families or professionals seeking a comfortable and accessible home, this property combines practical features with a welcoming layout and offers an excellent opportunity for buyers looking to modernise and make it their own in a well‑connected residential location.

